Parc Clematis

Being SingHaiyi Group's biggest and 4th private residential project in Singapore, this 1,468-unit new condominium (former Park West condo) at Clementi delivers plenty of incentive for the homebuyers in the western region.

21,922

At first glance, Parc Clematis (former Park West condominium) is simply one of the most eye-catching new launch condos in the western region of Singapore. It is rather different from everything SingHaiyi has developed so far, which is in their current portfolio.

For the last couple of years, there weren’t many new launches being released for sale with the Clementi precinct before Parc Clematis. The 2 most noticeable launches were The Trilinq and The Clement Canopy.

The responses received for these 2 projects were surprisingly different.

Despite being further away from The Clementi Mall, Clementi MRT, and Interchange, UOL Group only took 2 years to sell off every single unit at The Clement Canopy.

On the other hand, The Trilinq by IOI Properties took close to 4 years. To date, it does seem like it still has some balance units left.

Some believed that it is because units at The Clement Canopy are much smaller in terms of size, hence the quantum is more affordable while units at The Trilinq are bigger and therefore more pricey.

Based on the ‘buying behavior’, it does seem like prospects are more likely to be drawn the price than the size. This is something SingHaiyi has probably considered this as well.

Parc Clematis Condo near Clementi MRT

So with that in mind, is Parc Clematis a good buy in today’s market? Will it suffer the same fate as The Trilinq?

Before we get into the Parc Clematis review, I am going to give you a quick rundown of the project specifications of this new launch condo at Clementi.

Parc Clematis Project Information and Factsheet

For a start, here is a quick overview of the Parc Clematis project information (also known as factsheet).

Project Name Parc Clematis
Address Jalan Lempeng
Developer SingHaiyi Group Ltd
Architect P&T Consultants Pte. Ltd.
Type Condominium
Tenure 99-year leasehold
District 5
Site area 58,867 square metres / 633,644.38 square feet
Total number of units 1,468
Carparking lots 1,468 basement lots, and 9 handicap lots
Number of storeys 24
Number of blocks 9
Unit mix 1-Bedroom to 5-Bedroom; Penthouse; Strata Landed
Expected TOP date September 2023

Parc Clematis Developer

The developer of Parc Clematis is SingHaiyi Gold Pte Ltd, a holding firm of SingHaiyi Group Ltd. The Group began its venture in developing residential and commercial spaces in the United States. That was back in 2013.

Completed back in May 2015, Pasir Ris One was SingHaiyi’s maiden project here in Singapore. It is a public residential project developed based on the Design, Build and Sell Scheme (DBSS).

Since then, Parc Clematis condo’s developer SingHaiyi has gone on to develop many other private residential and executive condominium (EC) homes.

CityLife at Tampines by SingHaiyi Group
CityLife at Tampines by SingHaiyi Group

Some of its projects in Singapore include CityLife at Tampines (EC), City Suites, and The Vales (EC).

In fact, The Vales has won numerous awards, including the BCA Green Mark Gold Plus certification and CONQUAS Star rating.

Other than being the developer for Parc Clematis, the Group also has two more ongoing private residential projects. They are The Gazania and The Lilium - both located within the Bartley precinct.

Parc Clematis Location

Parc Clematis is located along Jalan Lempeng in District 5 of Singapore. It is right next to Regent Park condominium and The Trilinq condominium.

Parc Clematis Location

Looking at the location map above, Parc Clematis currently one of the 3 only condominiums projects within the Jalan Lempeng estate. They are also the only condominiums which are closest to Clementi central.

In addition, Parc Clematis is practically nestled among the private residential estate of Jalan Lempeng and Faber. Hence, for those who are looking privacy and exclusivity, the location of Parc Clematis couldn’t get any better.

Close proximity to Clementi MRT station and Clementi Mall

One of the key highlights of Parc Clematis condo’s location would be its close proximity to Clementi MRT station.

The Clementi MRT station is situated along the East-West MRT line of Singapore. Thus, it will require commuters around 20 - 25 minutes to reach the Central Business District (CBD).

But how long does it take to walk from Parc Clematis to Clementi MRT station?

Using the mapping system on OneMap, we’ve plotted out the shortest walking route from Parc Clematis (side gate along Clementi Avenue 6) to Clementi MRT station.

Parc Clematis distance to Clementi MRT station

It shows a walking distance of around 732 meters, which should take around 8 -10 minutes to walk from point to point.

That would also mean that it will also require residents at Parc Clematis that long to walk the nearest shopping mall, The Clementi Mall.

At Clementi Mall, you find tons of mega retail brands, quality restaurants, F&B outlets, and a supermarket (operated by FairPrice).

Further down from Clementi Mall, there is also the Courts superstore and Clementi 321 mall. It is where you can get all your furniture, electronics, appliances, or even catch the latest blockbuster movie.

Right in the middle of the 2 biggest commercial nodes in Singapore

The western region of Singapore has been booming of late. Over the last 6 -7 years, we’ve seen the emergence of the one-north and Jurong business districts.

Jurong has been deemed as the 2nd CBD of Singapore and one-north has always been known as the home for many biomedical, pharmaceutical, research & development, media setups.

The location of Parc Clematis couldn’t get any better as it is situated practically in the middle of these two biggest commercial nodes in Singapore.

It is exceptionally important for prospects who are looking to buy a unit at Parc Clematis because these are where the pool of tenants will come.

If you are working within either of these nearby commercial nodes, you will find it a breeze to commute to work every day.

Surrounded by top schools and educational institutes

Another perk for living at Parc Clematis would be its proximity to a number of top schools and educational institutes in Singapore. They range from primary to tertiary; post-graduate education.

For families with school-going children, you will be glad to know that Parc Clematis is located near a couple of primary schools.

These include Nan Hua Primary School, Clementi Primary School, Qifa Primary School, and Peitong Primary School. They are all located within the 1-km radius of this new condo at Clementi.

Nan Hua High School, Clementi Town Secondary School, and Tanglin Secondary School are also within the vicinity - for those looking at education options after the primary level.

Parc Clematis near NUS
The National University of Singapore (NUS)

It is also important to note that choices for tertiary education are also widely available around the area. They include the Singapore Polytechnic, Ngee Ann Polytechnic, the National University of Singapore (NUS), and the School of Science and Technology (SST), Singapore.

Parc Clematis Condo Facilities

Whether you are looking for the perfect home or just a property for investment, the number and selection of facilities should always be considered.

Well, in the case of this new Clementi condo, there is practically nothing to be concerned about – seriously.

As part of the developer’s effort to provide sufficient facilities for every resident and promote a community living, you will find a huge range of facilities within Parc Clematis condo itself.

For instance, you will find not one but three 50-meter lap pools; a pets’ lawn; two jacuzzi acloves, hydrotherapy pool, dining & relaxing pavilions, and many more!

In order not to bore you or drag on, here are the Parc Clematis site plan together with the condo facilities for you to have a better idea of the abundance of facilities and their locations.

Parc Clematis Site Plan

Parc Clematis Floor Plan and Unit Types

Parc Clematis comprises a total of 1,468 units across 9 residential blocks (24-storey each). The typical unit types range from 1-bedroom to 5-bedroom penthouses.

Unit Type Size
1-Bedroom 452 to 624 sq ft
1-Bedroom + Study 506 to 710 sq ft
2-Bedroom 689 to 893 sq ft
2-Bedroom Dual-Key 700 to 861 sq ft
2-Bedroom + Study 743 sq ft
3-Bedroom 829 to 915 sq ft
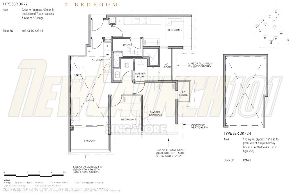
3-Bedroom Dual-Key 969 to 990 sq ft
3-Bedroom Premium 1,076 to 1,476 sq ft
4-Bedroom 1,238 to 1,475 sq ft
4-Bedroom Premium 1,292 to 1,766 sq ft
5-Bedroom 1,636 to 1,668 sq ft
5-Bedroom Premium 1,711 to 1,981 sq ft
Penthouse 1,991 to 2,669 sq ft

On top of the typical units, there are also strata landed houses available for sale in Parc Clematis. They consist of terraces, corner terraces, and bungalows.

Related Posts
Unit Type Size
Terrace 2,659 sq ft
Corner Terrace 3,466 sq ft
Bungalow 3,832 sq ft

Here is the Parc Clematis floor plan for each unit type that is available for sale.

Parc Clematis Price Guide

The following Parc Clematis price guide was released by the developer as on 09 September 2019. The entry price for Parc Clematis is averaging around $1,580 psf during the initial launch.

Unit Type Size Indicative Price PSF Price
1-Bedroom 452 sq ft $730,000 $1,615
2-Bedroom 689 sq ft $1,043,000 $1,514
2-Bedroom Dual-Key 732 sq ft $1,179,000 $1,611
3-Bedroom 829 sq ft $1,314,000 $1,585
4-Bedroom 1,238 sq ft $1,956,000 $1,580
5-Bedroom 1,668 sq ft $2,567,000 $1,539
Terrace 2,659 sq ft $2,752,000 $1,035
Bungalow 3,832 sq ft $3,927,000 $1,025

If we were to take reference from the collective sale price which SingHaiyi forked out for the former Park West condominium in January 2018 of $850 psf ppr, units at the Parc Clematis are actually being priced quite fairly in my opinion.

Parc Clematis Showflat Location

The Parc Clematis showflat is located opposite the actual site - across Clementi Avenue 6.

Parc Clematis Showflat Location

The opening hours of the Parc Clematis showflat is typically opened between 10 am to 6 pm on a daily basis. However, do note that it may be subjected to future changes.

In order to avoid making a wasted trip, you can simply give me a call at (+65) 6631-8384 or contact via the form below to check on the Parc Clematis showflat opening hours.

Parc Clematis Review

To be completely truthful, Parc Clematis does look like any other full-fledged condominiums that I’ve seen in the area - or even across the whole of Singapore over the last few years.

Other than it being newer and housing more homes than some of its earlier neighbors, there’s really very little to wow about.

However, that’s really until you look into the numbers, the location, and the interior plans.

A reasonable and fair price point

First of all, I personally feel that Parc Clematis is well-priced based on the current price points of other ongoing new launch projects.

I’ve picked out a few similar ones (with transactions up till 31 August 2019) to compare with Parc Clematis and here’s how it looks.

Project Name Tenure No. of Units Land Cost (PSF PPR) Average Selling PSF
The Florence Residences 99-Year 1,410 $842 $1,442
Affinity at Serangoon 99-Year 1,012 $835 $1,518
Jadescape 99-Year 1,206 $747 $1,676
Parc Clematis 99-Year 1,468 $850 $1,580

With a land cost of $850 psf ppr and an average selling price of $1,580 psf, Parc Clematis is clearly priced according to current market conditions.

It’s not the cheapest, but it’s certainly reasonable in my opinion.

Well-located near Clementi Mall and Clementi MRT station

For the price, you can’t really complain too much about the distance of Parc Clematis to Clementi Mall and Clementi MRT station.

Just within an 8 - 10 minutes’ away, you will have access to some of the biggest retail brands and restaurants. And most importantly, commuting to the downtown core of Singapore will only take you around 20 minutes via a train ride at the Clementi MRT station.

These days, if you can find any MRT station within a 10 minutes’ walk away from your residence, it’s really considered a blessing.

I mean let’s face it, there isn’t much private land available in our tiny island which is literally next to an MRT station. And most importantly, these properties will usually be priced at a premium.

Efficient and functional layouts

In some of my earlier review, you will notice that I am (still) struggling with the fact that some developers are building unnecessary and excessive balcony spaces.

Honestly, I do love the balcony space in my own apartment. It does serve a lot of purposes and can be really useful at times.

But the truth is, I don’t need a huge balcony or another one in my bedroom. To me, it’s just another way for developers to earn more money without offering any valuable space in exchange. After all, buyers are literally paying by ‘per square foot’ basis, aren’t they?

Well, fortunately, this doesn’t apply to units at Parc Clematis.

If you were to examine the Parc Clematis floor plans and layouts for each unit type, you will probably find very little wasted or unusable spaces.

Yes, there are some void spaces (such as a high ceiling), but they are mostly found in the non-typical unit types such as penthouses or units on the top floor.

Alright, it’s time to talk about the bad stuff.

Noise from traffic

Here we have a really good condominium development in Clementi and frankly, there isn’t really much to pick on.

If I have to be nitpicky, I would say that the only downside would be Parc Clematis being located literally right next to the Pan Island Expressway (PIE) and the Clementi Avenue 6 exit.

Technically, there are 3 blocks facing the PIE directly (if you were to refer to the site plan earlier on), so not all units at Parc Clematis are affected, thankfully.

However, when it comes to peak hour traffic, that’s when the problem escalates especially if you’re driving or facing any main roads surrounding the condo.

Noise, heavy traffic jams, inconvenience - these are really some of the things which you are likely to face when living at Parc Clematis.


Final Word

To be honest, I don’t have the best impressions for SingHaiyi. When I first visited Pasir Ris One (the public housing project), I thought it was utterly atrocious.

I didn’t manage to see the interiors, but the narrow corridors and poor workmanship were really a big turnoff. It was even all over the local news.

Parc Clematis Developer SingHaiyi Pasir Ris One DBSS Complaint

It’s public housing - the most basic form of residential development. If SingHaiyi couldn’t get that right, I really doubted its capability in building quality homes for the private residential segment.

Subsequently, SingHaiyi has developed two executive condo projects - [email protected] and The Vales. As it turns out, it wasn’t as bad as what I was expecting them to be. Everything was decent enough to pass off as a quality residential development.

Now with this new launch condo at Clementi, SingHaiyi has probably surpassed its own far-reaching ambitions. Despite not having such an impressive portfolio at this point in time, it does seem like SingHaiyi has finally got Parc Clematis right.

In my personal opinion, the numbers look right, the layouts look good. I may not be a big fan of high-density condos or the location, but if you love community living and the locality, Parc Clematis is certainly a worthy property to consider based on the current market conditions.

 

88%
Great!
  • Location
  • Transport Links
  • Amenities
  • Interior
  • Value

Register your interest to gain privileged information

Sending
You might also like
Comments
Loading...