The Tre Ver
Being branded as "Homes by the River", developers UOL Group and UIC Ltd are creating value for prospective homebuyers and investors via green spaces.
It’s been almost 2 years since The Tre Ver (former Raintree Gardens) was first launched for sale back in August 2018. And yes, I am (very) late to the party.
At the time of preparing this article (as of 25 June 2020), there are only 41 units left for sale at The Tre Ver condominium by the end of May 2020.
So if I were to say that this new launch condo is a good buy, I am pretty sure that most readers would condemn my belated thoughts and I am just wasting their time by stating the obvious.
However, if I give any sort of negative remarks for this development, another group of readers would think that my thoughts are just sheer bull.
Looking at the take-up and sales figures for The Tre Ver over the last 22 months. It has sold approximately 31 units on average every month.
Frankly, that’s really not too bad, considering the fact that it’s not really located next to any MRT station or shopping mall, and pressure coming from nearby launches such as Park Colonial and The Woodleigh Residences.
If you are reading this, you probably have some of these questions in your head right now.
Is The Tre Ver condominium a good buy now in 2020? Are you going to be overpaying, as compared to those who bought earlier? If the price has gone up, should you consider something else?
Hence, if you are still on the fence and thinking about these questions, here’s my review for The Tre Ver.
But first, let me give you the full details on this new launch condo at Potong Pasir.
The Tre Ver Project Overview
Let’s take a brief look at The Tre Ver project information before we go into the specifics of this development.
| Project Name | The Tre Ver |
| Address | 60 - 76 Potong Pasir Avenue 1 |
| Developer | A joint venture between UOL Group and United Industrial Corp (UIC) |
| Architect | WOHA Architects |
| Tenure | 99-year leasehold from 27 March 2018 |
| Site area | 201,405 sq ft |
| Total number of units | 729 |
| Number of blocks | 5 |
| Number of storeys | 20-storey (3 blocks & 19-storey (2 blocks) |
| Expected TOP date | Est. end August 2022 |
The Tre Ver Developer
As mentioned in the project overview, The Tre Ver condominium is developed by a joint-venture formed by UOL Group, together with United Industrial Corp (UIC).
Apparently, this is not their first collaboration.
Both groups worked together for several residential projects over the last few years. For instance, The Clement Canopy located along Clementi Avenue 1, and Avenue South Residence - located along Silat Avenue.
One of their upcoming projects would be located along Clementi Avenue 1, called Clavon.
UOL Group
You really don’t need much introduction when it comes to mentioning UOL Group.
It is one of the leading property developers in Singapore and has an impressive track record since 1963.
With almost 60 years of experience in the real estate industry, UOL Group’s well-established portfolio comprises of mainly management and development of residential properties.

Furthermore, it is also heavily involved in the commercial sector with the development of commercial buildings, shopping malls, and hotels.
It’s also worth noting that private residential projects by UOL Group have been incredibly well-received by homebuyers and investors over the last couple of years.
While most property developers struggle to sell off their existing inventory, UOL Group doesn’t seem to be affected at all.
That is to say, most of their recent residential projects before The Tre Ver are mostly fully sold.
These recent projects include the likes of Principal Garden, The Clement Canopy, Botanique at Bartley, and Riverbank at Fernvale.
United Industrial Corp (UIC)
United Industrial Corporation Limited (UIC) was first established back in 1963 as well. It started off as a private company.
The firm subsequently went public back in 1969 and since then, its core business mainly revolves around real estate developments and investments.
In 1990, the group has also acquired Singapore Land Ltd (SingLand) and since its inception, SingLand has played an important role in shaping the built environment of Singapore.
One of UIC’s most impressive real estate development has to be the newly completed V on Shenton (the former UIC building). It is situated along Shenton Way, within the Central Business District (CBD) of Singapore.

In addition, UIC has also expanded its business ventures into major global cities such as Beijing, Shanghai, and London.
The Tre Ver Location
The Tre Ver condominium is located along Potong Pasir Avenue 1 - in District 13 of Singapore. It is the site of the former HUDC, Raintree Gardens.
Refer to the location map above. You can see that other than The Poiz Residences, The Tre Ver is the only full-scale condominium development within the Potong Pasir housing estate.
Moreover, it is practically being tucked away at the very end of the Potong Pasir stretch.
Hence, for any home seekers who are looking for privacy and exclusivity, the location of The Tre Ver couldn’t be any better.
Located near Potong Pasir MRT station
The closest train station to The Tre Ver would be the Potong Pasir MRT station. It is just within a mere 10-minute walk away from the condominium (according to Google Map).
As it is part of the North-East MRT Line (NEL), you will find that it’s incredibly easy to get around Singapore.
Similarly like other MRT lines, you will find various interchange stations along the NEL.
For instance, Serangoon MRT station is just 2 stops away which connects you to the Circle MRT Line (CCL), and the Little India MRT station is just 3 stops away which connects you to the Downtown MRT Line (DTL).
So, getting around Singapore via the MRT is an absolute breeze. And this is also why living near an MRT station has become one of the most important for homebuyers and investors when it comes to buying a property in Singapore.
I believe some may argue that it’s still quite a distance to walk, especially under hot & humid weather conditions - which I agree.
Therefore, you can choose to hop onto the public bus (service no. 142) at the bus-stop that is just in front of Block 121 Potong Pasir Avenue 1.
The bus will take you to Upper Serangoon Road where one of the entrances to Potong Pasir MRT station is, in about 8 minutes.
Surrounded by a wide range of amenities
Potong Pasir is considered as one of the mature housing estates in Singapore.
Being once a resident in the area, it has never been a problem for me when it comes to fulfilling my daily necessities - from food to groceries.
If you head down to the HDB cluster of Block 136 to 145 along Potong Pasir Avenue 2 and Avenue 3, that’s where you will find all the retail shops, eateries, and a FairPrice supermarket.
Furthermore, with the opening of The Poiz Centre, there are even more F&B and retail options being offered.
Within close proximity to top primary schools
If you are a parent with school-going children, then you are in luck with The Tre Ver.
The location of this new Potong Pasir condominium is within the 1-km radius of St Andrew’s Junior School and the renowned Pei Chun Public School.
However, do note that only Block 66 and 68 are within the 1-km radius to Pei Chun Public School. That’s according to elite.com.sg, so do be mindful of this.
Other than these 2 primary schools, there are still many other options with a 2-km radius. These schools include the likes of Hong Wen School, Cedar Primary School, Yangzheng Primary School, and Maris Stella High School, etc.
For investors, you will probably want to consider international schools and the one closest to The Tre Ver condo would be the Stamford American International School (SAIS).
The Tre Ver Condo Facilities and Design
In order to give a brief idea of the condo facilities, here is The Tre Ver site plan. It should give you a better idea of the abundance of facilities within this development.
But frankly, the draw of this development as a private condo is more than just the facilities.
The Tre Ver condominium is being designed by the acclaimed WOHA Architects. Thus, just by looking at the exterior of this development, It’s really hard not to be impressed or awed by it.
If you require some reference, their architecture work for Parkroyal at Pickering has won them several major design awards previously.
Thus, you can somehow see the resemblance in the design concept being applied within this 729-unit condominium at Potong Pasir.
And having collaborated together for 15 years, both UOL Group and WOHA have given a lot of attention and effort to the interiors of this new development.
First of all, around 40 percent of the units in The Tre Ver will get to enjoy this “green foyer” concept and also have views from both the entrance of the condo and the balcony.
The 5 residential blocks will all be oriented in such a way that 80 percent of the homes at The Tre Ver will all have a water view. They will be facing either the Kallang River or a communal swimming pool.
Moreover, approximately a third of these homes in The Tre Ver will have a dual water view.
As for the remaining 20 percent of the units, each will have a view of greenery that looks out towards the new Bidadari town or Woodleigh Park.
Furthermore, all the residential units will be laid with marble in the living area and American oak timber in the bedrooms.
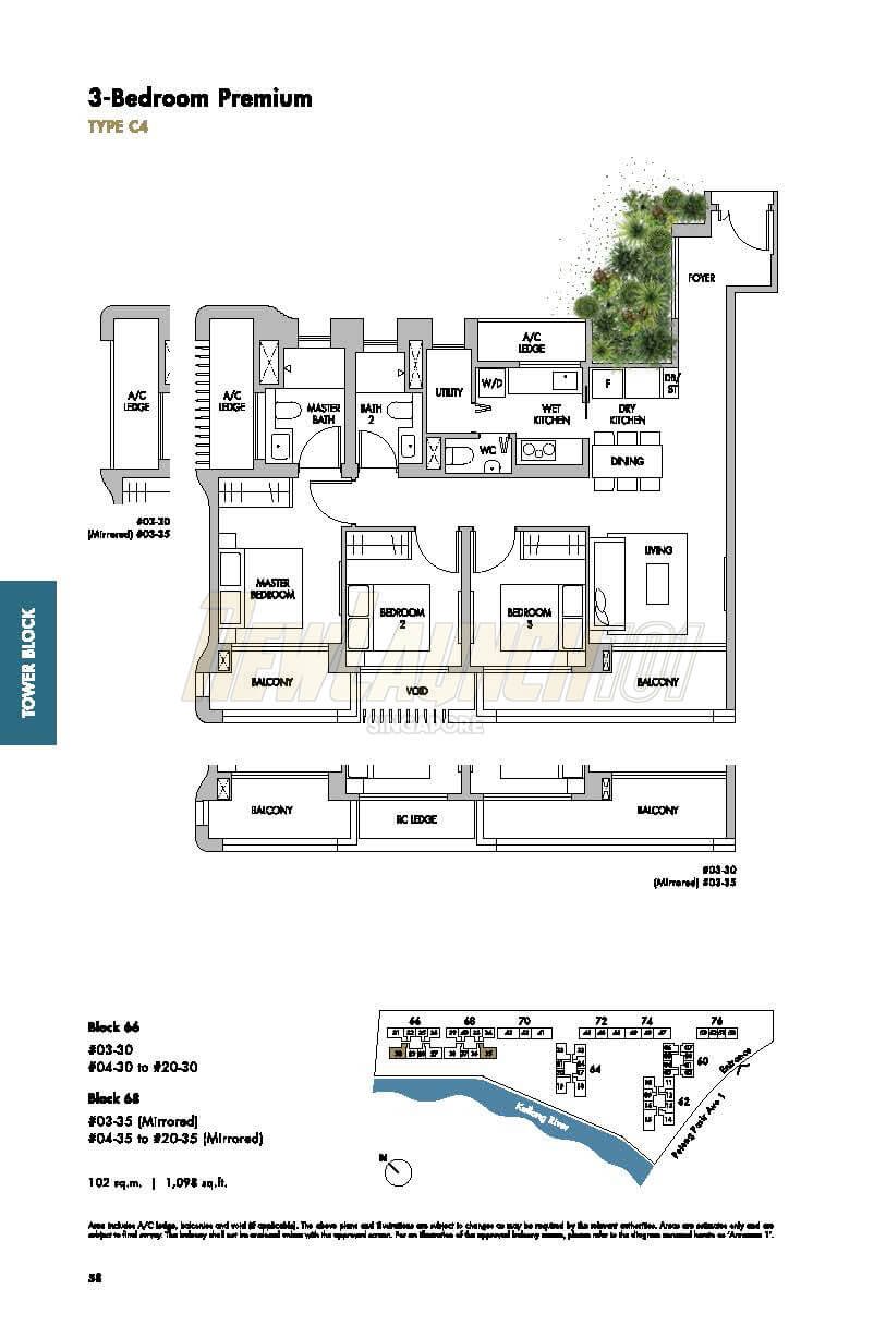
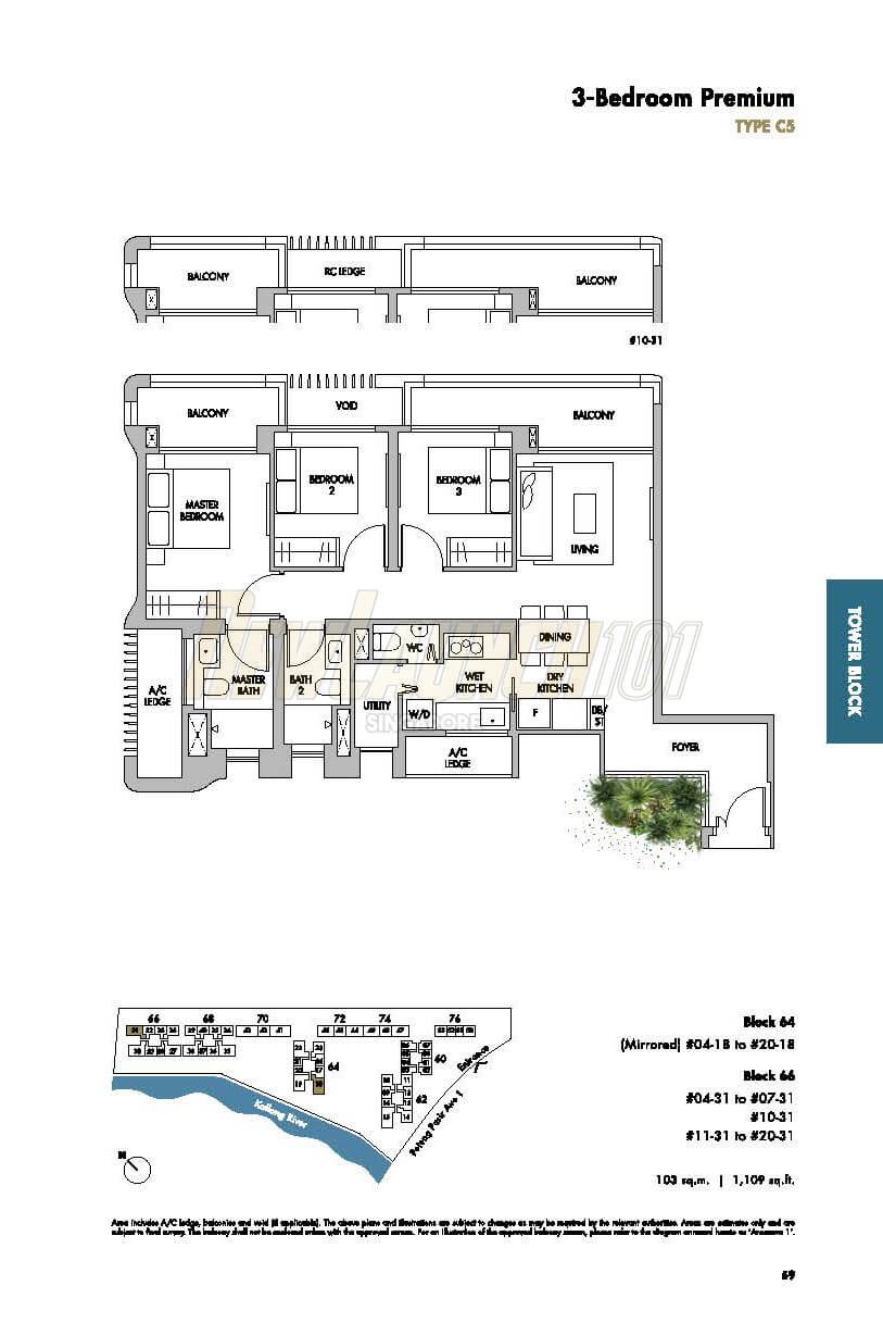
The Tre Ver Floor Plan and Unit Types
The Tre Ver comprises a total of 729 units across 5 residential blocks.
The typical unit types range from 1-bedroom to 4-bedroom. Hence, there is a good selection of units for both homebuyers and investors.
| Unit Type | Size |
| 1-Bedroom | 484 to 506 sq ft |
| 2-Bedroom | 614 to 646 sq ft |
| 2-Bedroom Premium | 689 to 797 sq ft |
| 3-Bedroom | 1,012 sq ft |
| 3-Bedroom Premium | 1,055 to 1,109 sq ft |
| 4-Bedroom | 1,335 to 1,378 sq ft |
Here is The Tre Ver floor plan for each unit type that is available for sale.
The Tre Ver Price Guide
The following The Tre Ver price guide is the latest update received on 24 June 2020, based on the 41 remaining units left for sale.
According to all the units transacted till this point, the average per square foot (psf) price works out to be $1,594.
| Unit Type | Size | Indicative Price | PSF Price |
| 1-Bedroom | 495 sq ft | $853,000 | $1,723 |
| 2-Bedroom | FULLY SOLD | - | - |
| 2-Bedroom Premium | 700 sq ft | $1,232,000 | $1,760 |
| 3-Bedroom | 1,012 sq ft | $1,634,000 | $1,615 |
| 3-Bedroom Premium | 1,098 sq ft | $1,723,000 | $1,569 |
| 4-Bedroom | 1,378 sq ft | $2,330,000 | $1,691 |
The Tre Ver Showflat Location
First of all, the showflat for The Tre Ver is not located on-site. Instead, it is located just right next to Woodleigh MRT station, along Youngberg Terrace.
However, do note that due to the safe distancing measures in place for property showflat, all viewings shall only be conducted via an appointment basis.
No walk-ins will be entertained.
Hence, in order to avoid making a wasted trip down to the showflat, you can simply send me a Whatsapp message or contact via the form below to make an appointment for The Tre Ver.
The Tre Ver Review
When The Tre Ver condominium was first launched back in 2018, I was seriously struggling to like this development.
At that point in time, the nearby Park Colonial was also launched for sale. And it was obviously a better choice in my opinion.
Aesthetically, I do feel that The Tre Ver has a clear edge over Park Colonial, but it is not exactly near and MRT station, or even a shopping mall - something that appeals to most home buyers and property investors.
Furthermore, if you don’t own a car or drive, you’re going to find it quite a hassle to travel in and out of the estate.
So, why is it selling so well over the last 2 years?
Attractive price point over other launches in OCR and RCR
The first reason I can think of is the price and I’m going to make this really simple and easy for you to understand.
Before that, do note that The Tre Ver is located within the Rest of Central Region (RCR), or otherwise known as city-fringe.
Price comparison with OCR projects
Just take look at the following table as I compare the average PSF price (based on transactions of the last 6 months) of The Tre Ver with the other popular ongoing launches located within the Outside Central Region.
| Project Name | Tenure | No. Of Units | Region | Average PSF | Nearest MRT station with 10 mins walk? |
| Sengkang Grand Residences | 99-Year Leasehold | 680 | OCR | $1,739 | Buangkok |
| The Tre Ver | 99-Year Leasehold | 729 | RCR | $1,626 | Potong Pasir |
| Parc Clematis | 99-Year Leasehold | 1,468 | OCR | $1,606 | Clementi |
| The Garden Residences | 99-Year Leasehold | 613 | OCR | $1,569 | - |
| Affinity at Serangoon | 99-Year Leasehold | 1,012 | OCR | $1,551 | - |
| The Florence Residences | 99-Year Leasehold | 1,410 | OCR | $1,510 | - |
| Whistler Grand | 99-Year Leasehold | 716 | OCR | $1,465 | - |
As you can see, The Tre Ver isn’t really the cheapest development when being compared to the rest of the OCR new launches listed.
Rightfully that should be the way as city fringe properties tend to have higher price points than the ones in the suburbs or mass-market regions.
And when you compare The Tre Ver with Sengkang Grand Residences, it somehow makes this new condo at Potong Pasir looks more attractive.
Price comparison with RCR projects
Then what about comparing up against some of the other similar projects in the RCR? Let’s have a look.
| Project Name | Tenure | No. Of Units | Region | Average PSF | Nearest MRT station with 10 mins walk? |
| Stirling Residences | 99-Year Leasehold | 1,259 | RCR | $1,924 | Queenstown |
| Kent Ridge Hill Residences | 99-Year Leasehold | 498 | RCR | $1,716 | Pasir Panjang |
| Jadescape | 99-Year Leasehold | 1,206 | RCR | $1,715 | Marymount |
| Parc Esta | 99-Year Leasehold | 1,399 | RCR | $1,694 | Eunos |
| View at Kismis | 99-Year Leasehold | 186 | RCR | $1,690 | - |
| Daintree Residence | 99-Year Leasehold | 327 | RCR | $1,669 | Beauty World |
| The Tre Ver | 99-Year Leasehold | 729 | RCR | $1,626 | Potong Pasir |
Now things look a little more interesting, doesn’t it?
Among most of the popular new launch condos in RCR, The Tre Ver is, in fact, the lowest-priced project.
Hence, in my opinion, I do feel that the price point is fair and is pretty attractive when being compared to most new launches in both the RCR and OCR.
If I really have to pick on the negatives …
As much as I love its architecture, price point, privacy & exclusivity, there are still a couple of drawbacks for this development that I personally can’t overlook.
The inconvenience
First of all, it’s really inconvenient to travel to and fro this development if you don’t drive.
And in order to get in and out of the estate, it’s either you walk (like 10 minutes) or take the public feeder bus (only 1 bus service available).
It’s likely going to be a big problem, especially for investors who are going to rent out their place at The Tre Ver and get a good rental yield.
The reason is that there are many developments along the Upper Serangoon Road stretch and those are much closer to an MRT station or a bus-stop with a wide range of services.
Just look at the map. You will see some fairly new ones at this point - such as Sennett Residence, Sant Ritz, Nin Residence, and The Poiz Residences.
Moreover, Park Colonial and The Woodleigh Residences will also complete around the same time as The Tre Ver and thus providing more competition for tenants.
It’s just simple economics! When supply overpowers demands, prices will generally fall. Therefore, chances are you might not be able to secure a good rental amount.
Excessive waste of space
Take a look at the floor plans of The Tre Ver. Do you realize that most of the layouts have very long and excessive foyer spaces?
Furthermore, the 3-Bedroom Premium units on the Tower block generally have huge and excessive balcony spaces.
If you’ve read my reviews for other new launch condos, you will know how all these extra balcony spaces baffle me.
I understand the fact that everyone has their own preference and taste, but I am just not a big fan of having a balcony in my bedroom.
Given a choice, I would rather have more interior space any day.
Final Word
The price and facts for The Tre Ver certainly make a lot of sense for any home buyers or investors.
So if you were to ask me if The Tre Ver is a good buy, I would say it really depends on what you are looking for.
If you are someone who loves privacy and exclusivity, then you seriously can’t go wrong with this development.
There’s really a lot to like about the design of this condo.
The architecture is just exceptional and I have no doubt about UOL Group and UIC’s ability to deliver a quality home to their prospects - although I do find the excessive wastage of spaces hard to look past.
And if you are an investor, getting a good rental is likely going to be a challenge and the future capital gain is questionable as well.
You may ask, why is the future capital gain questionable?
Because even homeowners who bought a unit at Sennett Residence (in 2013) haven’t made more than 6 figure’s profit (except just 2) - even after holding out for more than 5 - 6 years.
Therefore, as a safer bet, I would rather put my money on a unit at Sennett Residences, or others like Poiz Residences which are closer to the Potong Pasir MRT.
Although the lease of the site is lesser than The Tre Ver, at least the entry price could likely be very close to the initial launch price back in 2013.
All in all, I may not think very highly of The Tre Ver, but hey, there are only limited units left for sale. So perhaps home buyers and investors are seeing positives that I don’t.
However, in my opinion, I really don’t feel that you will be missing out on anything at this stage.